Practice Test: Technology/Engineering (70)
Suggested Testing Time: 4 hours
To Take This Practice Test
- Use the answer key to record your responses.
- Prefer to take it offline? You can print the questions and answer key.
Remember:
- The practice test can give you a good indication of how you may perform on an actual test, but there is no guarantee that your results will be the same as on the actual test.
- The actual test looks and operates differently than this practice test. Review the Testing Tutorials and Demonstrations for more information about the actual test platform.
- A scientific calculator
and formulas
are provided on screen with your actual test.
Question 1.
Use the diagram below to answer the question that follows.

A diagram is shown in which a large rectangle is divided into four smaller rectangles. The bottom right rectangle is further divided into two smaller rectangles. Of the two, the upper rectangle is labeled hallway, carpet. The lower rectangle is labeled bathroom, tile floor. The bottom left rectangle is labeled kitchen, tile floor. The top left rectangle is labeled living room, hardwood floor. The top right rectangle is labeled bedroom, hardwood floor. The right side of the bathroom rectangle is labeled 11 feet. The left side of the kitchen rectangle is labeled 15 feet. The left side of the living room rectangle is labeled 15 feet. The top of the living room rectangle is labeled 20 feet. The top of the bedroom rectangle is labeled 16 feet.
A contractor needs to specify 4.0-inch-wide hardwood floorboards for the floor plan shown. Assuming 10.0% waste, which of the following values is the best estimate of the number of linear feet that should be specified?
- 540.
- 1,620.
- 1,800.
- 2,160.
Question 2.
Use the information below to answer the question that follows.

An x y coordinate plane is shown, labeled “Balloon-Powered Car”. The x axis extends from 0 to 10 and is labeled time in seconds. The y axis extends from 0 to 6 and is labeled distance in meters. 11 points are plotted on the axes, connected in order by line segments. The 11 points are placed at x = 0 y = 0, x = 1.5 y = 0.5, x = 2 y = 1, x = 2.25 y = 1.5, x = 2.75 y = 2, x = 3 y = 2.5, x = 3.75 y = 3, x = 4 y = 3.5, x = 4.75 y =4, x = 6.25 y = 4.5, and x = 9 y = 5.
The graph shows the data students collected while testing a balloon-powered car. In which of the following ways will the graph change if students use a better-quality wheel bearing?
- The overall average slope of the curve will decrease.
- The slope will be greatest between 0 and 1.5 seconds.
- The speed between 0 and 1.5 seconds will increase.
- The total distance traveled by the car will decrease.
Question 3.
An engineer designs a wastewater treatment system for a house that is not connected to a municipal treatment system. The design consists of a septic tank and a leach field. The engineer recommends including an electric compressor to force air bubbles through the contents of the septic tank. Which of the following possible results is most likely to increase the efficiency of the system when including the compressor?
- The introduction of air into the tank forces movement of the liquid waste into the leach field.
- An increase in aerobic respiration of microorganisms speeds the breakdown of organic matter.
- Added oxygen reacts with carbon and binds to other elements in the waste.
- Pressure and temperature rise, causing increased reaction rates.
Question 4.
A rheostat has a maximum resistance of 3.5 times 10 to the third power ohms. A second rheostat has a maximum resistance of 3.5 times 10 to the power of 3 ohms. What is the sum of the two maximum resistances?
- 3.5 times 10 to the third power ohms
- 7.0 times 10 to the third power ohms
- 3.5 times 10 to the sixth power ohms
- 7.0 times 10 to the sixth power ohms
Question 5.
Use the diagram below to answer the question that follows.

The diagram displays a rectangular cube with a height of 50 centimeters, depth of 4.5 centimeters and width of 4.5 centimeters.
Copper has a density of 8.96 g/cm3. What is the approximate mass in kilograms of the solid bar of copper in the diagram?
- 1.12 kg
- 9.1 kg
- 91 kg
- 112 kg
Question 6.
A circular garden has a radius of 12 feet. If the garden is enlarged so that its new radius is 24 feet, by what factor will the garden's area increase?
- 2
- 4
- 8
- 12
Question 7.
A manufacturing company is producing dowels that have a diameter of 8.5 mm plus or minus 0.1 mm. The hole the diameter must fit into has a diameter of 9.0 mm plus or minus 0.1 mm. According to these specifications, what is the greatest clearance that can occur between the two parts?
- 0.1 mm
- 0.2 mm
- 0.5 mm
- 0.7 mm
Question 8.
Use the diagram below to answer the question that follows.

The diagram shows two circles representing two spheres. The smaller circle has a radius of 8.4 inches and the larger has a radius of 25.2 inches.
A spherical workpiece has a radius of 8.4 inches and a volume of V cubic inches. A larger spherical version of the sphere has a radius of 25.2 inches. What is the volume of this larger sphere?
- 8.0V
- 13.5V
- 27.0V
- 54.0V
Question 9.
A plan for a sidewalk measures 11.25 inches in a drawing that has a scale of 1 inch = 20 feet. What will be the length of the actual sidewalk, to the nearest foot?
- 11 feet
- 22 feet
- 220 feet
- 225 feet
Question 10.
A technology and engineering teacher challenges students to construct the tallest possible tower using no more than five index cards, five pieces of uncooked spaghetti, five wooden craft sticks, and five centimeters of masking tape. Students will likely feel most constrained by the limited amount of:
- index cards.
- uncooked spaghetti.
- craft sticks.
- masking tape.
Question 11.
At a circuit board manufacturing company, samples of finished products are tested for defects at regular intervals. Recently, a defect has been showing up repeatedly. To find the cause of the defect, the company should first:
- decrease the interval between samples.
- halt production and recalibrate all of the machines.
- sample products at various stages in the manufacturing process.
- inspect the parts and materials used to make the circuit boards.
Question 12.
Which of the following uses of computer simulations is most important for optimizing a product's design?
- modeling complex interactions of variables to help designers evaluate proposed solutions
- providing more accurate mathematical calculations than are possible through other means
- identifying the specific criteria to be used in assessing the proposed design
- proposing suitable trade-offs within the constraints of the design problem
Question 13.
Use the information below to answer the question that follows.
A team of technology and engineering students is exploring a problem with the filter pump used in a small pond in the school's greenhouse. The filter pump is not adequately removing debris from the water. The team brainstorms the following possible causes.
- The pump capacity is too small for the pond.
- The wrong type of filter material is being used for the application.
- The filter is not being changed often enough.
- The filter does not fit tightly, so some water passes through the pump without going through the filter.
Which of the following steps would be most productive for the students to take next?
- identifying sources and costs of replacement parts for the filter pump model
- building a small-scale model of the pool with an appropriately sized pump in the lab
- arranging the list of possible causes in a logical order to investigate systematically
- researching specifications for acceptable water quality
Question 14.
Which of the following is an example of reverse engineering?
- disassembling a device to determine its internal mechanisms
- redesigning a product to reduce the number of parts or assemblies
- finding a new use for an existing tool or machine
- replacing energy-intensive processes with more fuel-efficient processes
Question 15.
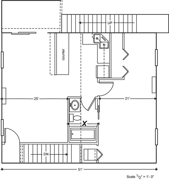
Use the floor plan below to answer the question that follows.

A drawing showing a floor plan of a square shaped home that is 51 feet wide. The rooms are not labeled. The top half of the floor plan is divided into three spaces from left to right. The room in the middle is the kitchen. The bottom half of the floor plan has three adjacent rooms from left to right. The room located on the left is 25 feet wide and is open to the space above it to the left of the kitchen. The room located on the bottom right is 21 feet wide and is open to the space above it, to the right of the kitchen, which has a closet. There is a bathroom between the two rooms located at the bottom of the floor plan, with a length of X.
If the scale used to draw the floor plan is one half inch to 1 foot, what should be the length of the dimension labeled X in the floor plan?
- 2.0 inches
- 2.5 inches
- 3.5 inches
- 5.0 inches
Use the student project report below to answer the two questions that follow.
| Problem |
|---|
| Trash from a public park ends up in a lake, and it is difficult to reach and remove. |
| Solution |
| An autonomous electric boat with a servomotor-controlled scooping mechanism with a net that collects trash in the water and dumps it into an onboard receptacle. A pressure sensor in the net activates the scooping mechanism. |
| Procedure |
| We built a radio-controlled prototype and tested it on a small lake with real trash. |
| Procedure |
| Approximately 80 percent of trash in the boat’s path was deposited into the receptacle. |
Question 16.
Given where the students are in the design process, they should follow up on this project report by identifying and documenting:
- testing protocols.
- remaining issues and next steps.
- budgetary constraints.
- aesthetic features and preferences.
Question 17.
Which of the following possible outcomes would be the most likely and harmful unintended consequence of this solution?
- avoidance of the area around the lake by park-goers
- lowered public concern of littering issues
- disruption of plants and animals in the lake
- increased shoreline erosion
Question 18.
A team of biomedical engineers is designing a wearable device that monitors and records a patient's kidney function over the course of a day. Which of the following design criteria is most important to maximize patient compliance in wearing the device?
- long battery life
- discreet appearance
- large memory capacity
- continuous data transmission
Question 19.
An international food aid organization hires a software company to design a system to coordinate food distribution. Which of the following questions would be most important for the software engineers to ask first when beginning the design process?
- What is the nature of the problem this system needs to solve?
- What kind of technology is the organization currently using?
- How soon does the organization need the system to be implemented?
- How many users will need to be serviced simultaneously?
Question 20.
Which of the following factors is the greatest advantage of nuclear energy over fossil fuels for energy production?
- lower environmental impact of extraction
- lower initial cost of construction
- lower risk of exhausting fuel supplies
- lower carbon emissions
Question 21.
Several homeowners in a community convert their houses from gas baseboard heat to electric heat pumps in order to reduce carbon emissions and decrease dependence on nonrenewable energy sources. Which of the following possible eventualities would most likely interfere with the homeowners' specific goals?
- extreme cold weather lowering efficiency
- changes by the electricity generation utility
- mold buildup inside blowers and ductwork
- maintenance costs for the many components
Question 22.
A city commission considers solutions to the problem of poor air quality due to commuting by car. The two solutions under consideration are an electric commuter train and a bike path. Both would take advantage of existing corridors from a defunct railroad system. The commission forms focus groups to discuss the proposed solutions. To choose the best solution to the problem the focus groups should consist of people who:
- regularly drive into and out of the city.
- use the existing public transportation system.
- represent a diverse sample of the city residents.
- own conventional or electric motor-assisted bicycles.
Question 23.
Human factors engineers at an automobile company are selecting a webbing material to be used for seat belts for future models. The two options are conventional closed-weave polyester webbing and a new stronger, more lightweight open-mesh material that allows for more airflow. For which of the following reasons are the human factors engineers most likely to choose the conventional closed-weave polyester webbing?
- The engineers are more familiar with the properties of the polyester webbing.
- Webbing that is too strong could injure the passengers during sudden stops.
- Closed-weave webbing gives an impression of greater security for passengers.
- Suppliers are able to more dependably provide the polyester webbing.
Question 24.
A start-up company based on an innovative new consumer product advertises on several social media platforms. The company finds the advertisements very effective at generating sales. Additionally, it is able to download extensive demographic data on the people who view and engage with its advertisements. These data help the company continue to refine the targeting of its advertisements. How can these data be most useful from an engineering practices perspective?
- helping with the technical side of ad design
- understanding end users to inform design decisions
- tracking sales volume to help predict future demand
- understanding marketing techniques
Question 25.
Engineers are designing an electrical power-assisted bicycle for commuters. They are deciding whether to use a conventional bicycle chain drivetrain, a belt drivetrain, or a shaft drivetrain. They build prototypes and evaluate each solution based on cost, reliability, efficiency, and user experience. Which of the following strategies would best help the engineers decide which drivetrain option to use?
- creating a weighted list of criteria for rating each option
- racing the prototypes against conventional bicycles ridden by professional cyclists
- conducting focus groups about features consumers look for in bicycles
- discussing the strengths and weaknesses of each option and then taking a vote
Use the information below to answer the two questions that follow.
Students create wall clocks from painted acrylic blocks by drilling a hole in the center of the block and installing a battery-powered quartz clock mechanism kit. To drill the hole for the clock mechanism, students use precision-tip drill bits.
Question 26.
Students first practice drilling through painted acrylic scraps. When they start to drill, the bit has a tendency to slide across the surface away from the intended location of the hole. Which of the following techniques would be most appropriate to use to keep the bit in place at the beginning stage of drilling into painted acrylic?
- using a center punch to gently make an indentation in the paint
- bringing the drill to operating speed before applying the bit to the surface
- removing the paint from a small area in the center of the plate with sandpaper
- applying two pieces of masking tape that cross where the hole is to be drilled
Question 27.
Which of the following speed settings would be best for drilling through the painted acrylic block to prevent shattering?
- keeping the speed setting at high for the entire time
- keeping the speed setting at low for the entire time
- starting at low speed and finishing at high speed
- starting at high speed and finishing at low speed
Question 28.
Which of the following safety precautions is most important when operating any handheld power tool?
- keeping good footing with weight balanced on both feet
- wearing safety earmuffs that enclose the entire ear
- keeping the trigger in the unlocked position
- moving the tool away from one's body
Question 29.
A hand-riveting tool is used to install blind rivets, also known as POP® rivets. This type of fastener is especially useful for joining thin metal parts when:
- the connection needs to be watertight.
- a large number of fastenings are required.
- the back side of the work is not accessible.
- the parts will need to be disassembled later.
Question 30.
Which of the following qualities makes a CNC milling machine most advantageous over a handheld router?
- ability to make complex high-precision cuts
- applicability to a wider variety of materials
- decreased time required for tool setup
- reduced requirement of operator skills
Question 31.
Which of the following steps should be taken first in administering first aid to a person who has received a puncture wound while using a drill press?
- calling 9-1-1
- applying a bandage
- applying direct pressure to the wound
- rinsing the wound with running water
Question 32.
Which of the following is an important component of a solution used to clean up a blood spill on a workplace floor?
- baking soda
- acetic acid
- chlorine bleach
- hydrogen peroxide
Question 33.
Which of the following tools would be the most appropriate choice for determining the distance between two points on a flat surface of a workpiece?
-
Choice A is a picture of a tool with two narrow straight legs attached by a spring joint curved around the legs at the top. The legs come to a point at the bottom tip of each leg. The width of the legs can be manipulated by turning a thumb screw attached to the legs.
-
Choice B is a picture of a tool with two outwardly curved legs. The legs also come to a point at the tip, but the tips point toward each other due to the outward curve. It also has a spring joint curved around the legs at the top and a thumb screw to manipulate the width. This width is sometimes referred to as the jaw size.
-
Choice C is similar to the tool pictured in answer A except the bottom tips of the legs curve slightly inward, while the tips face outward away from each other.
-
Choice D is a tool with flat, wider legs. The legs are attached by a fixed or locking joint at the top. One leg is pointed downward at the tip and the other leg bent inward at the bottom tip facing the other leg.
Question 34.
A design engineer would like to determine the diameter of a circle. The engineer begins by using a straightedge to draw a line tangent to the circle. Which of the following steps would be most appropriate next?
- using a compass to construct the perpendicular bisector of the tangent and extending it until it intersects the circle at two points
- drawing a second tangent parallel to the first tangent using a T-square, and then connecting the two points of tangency
- beginning at one end of the tangent, using a straightedge to construct a second tangent, and then connecting the two free ends of the tangents
- using a compass to draw an arc centered on one end of the tangent, and then drawing an equal arc centered on the other end of the tangent
Question 35.
Which of the following welding processes is used primarily to weld metals such as aluminum and magnesium?
- shielded metal arc welding
- oxyacetylene welding
- gas tungsten arc welding
- carbon arc welding
Use the information below to answer the two questions that follow.
A company that makes prefabricated metal buildings uses powder-coated galvanized corrugated steel for wall panels. The company manufactures these panels in-house to maximize quality control.
Question 36.
Which of the following processes is most likely involved in manufacturing these panels?
- forging
- extruding
- die casting
- cold rolling
Question 37.
Which of the following functional requirements would best be met by these panels?
- resistance to environmental conditions
- thermal and acoustic insulation
- classic aesthetics
- structural flexibility
Question 38.
Use the information below to answer the question that follows.

The picture shows an oval shaped base with a clip attached. The clip has two parts. There is a thick part, which is shaped like a hook or the letter J and a thin part, which is shaped like a small beam or the letter I, If the clip was closed, the two parts would look like the letter U with the top of the U attached to the longest side of the oval. The beam section of the clip will nest within the curved section of hook and unlatch as needed.
A plastic parts manufacturing company is commissioned to make the clip shown for a tote bag. The client has specified the shape and dimensions of the clip. The thickest parts of the clip must be strong and rigid enough to withstand a strap load of 20 pounds, while the thinner part must be flexible and resilient enough to allow clipping and unclipping 2,000 times without failing. The design engineers plan to use various materials to fabricate several sample clips. Which of the following fabrication techniques would most easily allow engineers to produce rapid prototypes using different thermoplastic compositions?
- using a CAD/CAM milling machine
- using an injection molding machine
- using CAD software and a 3-D printer
- using a manual milling machine
Question 39.
A company manufactures metal parts for the mining industry. These parts need to be extremely strong, hard, and durable. Which of the following metal-forming processes will most likely result in parts that meet this requirement?
- molding
- casting
- forging
- rolling
Question 40.
Which of the following is the most important advantage of four- and five-axis milling machines over three-axis machines?
- reducing the time spent changing cutting bits for different applications
- making more complex parts without stopping to reorient the piece
- running several cutting tools simultaneously on the same piece
- fabricating multiple copies of a part all at the same time
Question 41.
A start-up company is developing a pedal-powered three-wheeled commuter vehicle with electric assist. The vehicle will have a welded tubular steel frame and a fiberglass body. As the product enters the manufacturing phase, the project team decides to choose custom fabrication instead of mass production. Which of the following reasons best justifies this decision?
- The team may need to make modifications to the design.
- The team is worried about the impact of rising labor costs.
- The team wants to ensure that the vehicles are all perfectly identical.
- The team is willing to invest more initially in order to reduce long-term costs.
Question 42.
Polymerization is a process used to produce which of the following materials?
- ball bearings
- textiles
- metallic wire
- plastics
Question 43.
In preparing petroleum products, cracking is a process used to:
- break complex molecules into simpler molecules.
- remove impurities from crude oil.
- convert liquid petroleum products into tars and plastics.
- assay the quality of petroleum.
Question 44.
Which of the following manufacturing processes is most commonly used to create detailed metal parts that require minimal finishing?
- sand casting
- mold casting
- centrifugal casting
- die casting
Question 45.
The quality control team for a company that produces camshafts for gasoline engines currently takes one camshaft in every 100 off the production line and subjects it to rigorous testing. The company is considering changing the production process to include sampling one camshaft out of every 75 camshafts. Arguments against this change will most likely focus on which of the following factors?
- long-term profits
- production costs
- sales volume
- marketing needs
Question 46.
A production line produces electric golf carts and ride-on mowers. For which of the following steps in the company's production lines is robotics most likely to be appropriate?
- troubleshooting part failures
- adding custom details
- spot-welding metal body parts
- final product inspection
Question 47.
In typical radio communication, a transmitter takes a source signal and embeds it in a carrier signal using modulation technology. The combined source signal and carrier signal are then broadcast together using a radio antenna. The receiver takes the combined radio signal from the antenna and separates the source signal. Which of the following explanations best accounts for the use of this modulated carrier signal technology instead of simply broadcasting the source signal by itself?
- Several source signals can be embedded in one carrier for increased bandwidth.
- The embedded signal is less likely to become noisy from outside interference.
- The resulting combined signal has more power for traveling long distances.
- The carrier signal wavelength allows for a reasonably sized antenna.
Question 48.
Engineers are studying the acoustic characteristics of whale and dolphin sounds with the goal of developing highly efficient underwater communication technologies. Investigating which of the following questions would be most likely to support this goal?
- What meanings do the different sounds represent for these marine mammals?
- How can these sounds be processed to be more discernable to the human ear?
- What characteristics can be detected in the sounds from extremely far away?
- How do the sounds vary between species and between geographical regions?
Question 49.
A small business has several computers and printers that are not networked throughout its office. The business owner is considering installing a local area network (LAN). Which of the following is the most significant benefit of installing a local area network?
- Software applications with a single-use license can legally be installed on multiple networked computers.
- Printers on the network can be accessed from any of the networked computers.
- The performance of the computers and peripherals on the network will improve.
- Peripheral devices installed on the network are less likely to experience technical difficulties.
Question 50.
Which of the following is typically a digital signal?
- the output from a microphone
- the input to a sound amplifier
- the output from a computer's speaker
- communication between computers
Question 51.
Which of the following statements regarding digital and analog sound files is accurate?
- Digital signals more closely represent natural sound than do analog signals.
- Digital files can be copied more times without loss of quality than can analog files.
- Analog files can be transferred electronically whereas digital files cannot.
- Analog files can be directly stored on a CD.
Question 52.
Which of the following best explains why electromagnetic waves, but not sound waves, can travel through interstellar space?
- Sound waves attenuate over distance more easily than electromagnetic waves.
- Sound waves require a gravitational force in order to propagate.
- Sound waves have a greater amplitude than electromagnetic waves.
- Sound waves are dependent on a carrying medium.
Question 53.
In fiber-optic telephone systems, messages are transmitted along optical cables as:
- light pulses.
- electrical current.
- changes in wavelength.
- changes in color.
Question 54.
When designing concrete bridge decks, it is important to account for expansion, flex, and vibration. This is typically done using expansion joints between adjacent sections of the concrete deck. When selecting a material for the expansion joints, which of the following properties is most important to take into account?
- density
- elasticity
- tensile strength
- thermal conductivity
Question 55.
Pairs of students build prototype wall-and-window sections incorporating membrane barriers and flashing to evaluate and improve the design. The students test the prototypes using a water hose to see how well they repel water and how well they allow any trapped water to escape to the exterior. After observing the results of the test, which of the following next steps would best exemplify application of science and engineering practices in this context?
- designing and testing a modified model based on insights gained from the test results
- writing down the lessons learned and applying them to future construction projects
- comparing the test results with industry specifications found on the Internet
- designing a new testing method using a different water source
Question 56.
A structure, including its foundation, is designed for a building site consisting of sandy soil that is 2 meters deep, with the constraint that all work must be completed in a tight time frame. However, excavation uncovers clay starting at 1.5 meters below the surface. What is the best solution in this case?
- redesign of the structure
- soil replacement to the specified depth
- redesign of the foundation
- compaction of the layer of clay
Question 57.
The operation of a typical bimetallic-strip thermostat is based on the difference in two metals':
- specific heat.
- coefficient of friction.
- specific gravity.
- coefficient of expansion.
Question 58.
In choosing materials for structural members of an aircraft, there is most often a trade-off between which of the following characteristics?
- strength and weight
- plasticity and weight
- strength and elasticity
- plasticity and elasticity
Question 59.
The stability of a truss bridge is based primarily on the integrity of:
- circles.
- triangles.
- squares.
- cylinders.
Question 60.
Use the graph below to answer the question that follows.

The picture reflects a curve with time displayed along the X axis and deflection in centimeters shown along the Y axis. Both axes shown are in increments of two. A line is drawn from the point where x is zero and y is zero to the approximate point where x is five and y is eight. This line is linear. At this intersecting point, there is a sharp curve to the right and the line continues almost at a right angle from the original line. The line continues to the point where x is approximately 17 and y is approximately 10. Then the graph line immediately drops almost straight downward from these intersecting points to where the x axis is approximately 18 and the y axis is just above 0. Here the line turns immediately to the right and ends where x is 19 and y is just above the point at 0.
A constant bending force is applied to a wooden beam for 17 seconds. The graph shows the deflection of the beam as a function of time. What quantity is represented by the height of the graph at 19 seconds?
- the index of elasticity of the beam
- the residual deformation of the beam
- the time it takes for the beam to stabilize
- the minimum force required to bend the beam
Question 61.
A contractor is hired to repair an asphalt shingle roof on a commercial building. To save time, and since the original shingles are worn, the contractor decides to install the new shingles over the old shingles instead of removing the old shingles first. Which of the following types of loads will be most affected by the decision?
- snow load
- wind load
- live load
- dead load
Question 62.
Use the diagram below to answer the question that follows.

The diagram displays a staircase. The stairs consist of seven steps each with a kick plate or vertical board at the end of each step. At the top of the stairs is a landing with a three forth inch subfloor underneath. The diagram shows a diagonal board located under the staircase that runs from the bottom stair to the top stair.
In the stairs in the diagram, the subfloor transfers loads directly to:
- risers.
- stringers.
- studs.
- joists.
Question 63.
Use the diagram below to answer the question that follows.

The picture shows a truss bridge with two equal triangles connected to a road deck. Each triangle is bisected by a vertical support beam. The top chord runs between the top of these two vertical beams. The road deck runs left to right across the base of both trusses with an approach to the bridge at either end. There is a car located at the center of the bridge on the road deck where the two trusses meet. Under the car is an arrow pointing straight downward through the road deck which is labeled load. Some of the members on the bridge are labeled. The left diagonal brace of the left truss is labeled A. The right diagonal brace of the left truss is label B. The top chord is label C. Label D is the road deck.
In the bridge design shown, which member is in compression?
- A
- B
- C
- D
Question 64.
Use the diagram below to answer the question that follows.

The diagram displays two rectangular members that are perpendicular. The horizontal member intersects the vertical member, called the wall, approximately two thirds the distance above the bottom of the wall. The intersecting horizontal member is nested into the wall approximately two thirds the width of the wall. The label X is displayed above the horizontal member just above the intersecting section.
In the cantilever shown, what type of force is being applied to the wall at point X?
- compression
- tension
- shear
- torsion
Question 65.
The weight of which of the following is part of the live load on a building?
- air-conditioning unit
- accumulated snow
- roof trusses
- structural members
Question 66.
A 600 N piece of metal rests on a concrete column. The line from a winch is pulling upward on the column with a force of 25 N. What is the resultant force on the column?
- 575 N compression
- 575 N tension
- 625 N compression
- 625 N tension
Use the figure below to answer the two questions that follow.
The figure shows simplified diagrams for the two basic types of automobile suspensions.

There are two diagrams displaying different linkage designs. The top diagram shows two tires perpendicular to the roadbed with a linkage system consisting of rods that use pinions to attach to a subframe. The subframe is shaped like a trapezoid that is wider at the top than the bottom. Connected to the left side of the subframe are two rods which run parallel to the road. The upper rod extends linearly from the top of the subframe, while the lower rod extends linearly from the bottom. They are perpendicular to the inner part of the tire, but do not attach to the tire. Instead, they connect to another rod that runs parallel and adjacent to the tire. This rod does not extend past the upper or lower rods. Because the subframe width is shorter across the bottom, the lower rod is longer than the upper rod. Located above the upper rod, close to the subframe, is a coil spring. It is nested between the upper rod and metal plate or mount which sits on top of the spring. Parallel to the right side of the spring, is another rod. It extends from the mount and connects to the upper rod where the rod joins the subframe. If the tires were on a flat surface, the linkage system to the right of the subframe would be mirror image of the left. However, the tire to the right is nested on a raised surface. Since the tire remains perpendicular to the road, the linkage system to the right of the subframe cannot be parallel to the road. The upper and lower rods are positioned at upward slants towards the raised tire and the spring has compressed. The bottom diagram shows only one long rod or axle that connects the left tire to the right at each tire's center. The rod goes through the center of a subframe which is identical to the trapezoid in the first diagram. At the top left and right corners of the subframe are short rods perpendicular to the subframe. There is a metal plate or mount located perpendicular to each of these short rods, facing toward their perspective left or right tire. Nested between the mounts and the axle is the springs. The spring on the right is compressed because the right tire is resting on a raised surface, while the left tire is sitting on the road. The axle is slanted upward toward the right raised tire. Neither tire is perpendicular to the road. They are leaning left slightly.
Question 67.
The top diagram shows a complex linkage system between the car body and each wheel. Which of the following functions best represents the advantage of this linkage system over the system shown in the bottom diagram?
- keeping the tires perpendicular to the road surface
- providing structural strength to prevent damage
- restricting the vertical motion of the wheels
- reducing the cost of manufacturing
Question 68.
A shock absorber is enclosed inside each spring in the figure. Which of the following functions is the most important action of the shock absorbers?
- limiting the travel of the wheels
- guiding the motion of the linkage
- supporting the weight of the vehicle
- damping the oscillation of the springs
Question 69.
Large ships have powered devices in their bows, called bow thrusters, that provide lateral thrust. In turning a ship, the main advantage of using a bow thruster rather than a rudder is that a bow thruster:
- helps reduce fuel consumption.
- can make small directional adjustments.
- does not require forward motion.
- allows for computerized course adjustments.
Question 70.
Which of the following best describes the primary reason for using multistaging in launching rockets?
- Lower stages that have become depleted of fuel provide an increase in the efficiency of upper stages.
- Stages can be recovered and reused after they are jettisoned and fall back to Earth.
- Total weight is reduced by jettisoning unnecessary empty stages.
- Stages provide additional thrust as they fall away from the rest of the rocket.
Question 71.
Which of the following types of motors is most commonly used in automotive starters?
- A C induction motor
- A C synchronous motor
- DC brushed motor
- DC stepper motor
Question 72.
The primary motivation for companies using containers in intermodal freight transport is that this system:
- reduces delivery time.
- minimizes weight.
- reduces fuel consumption.
- minimizes freight handling.
Question 73.
In automobiles, rack-and-pinion gears are commonly used in which of the following systems?
- support
- suspension
- steering
- braking
Question 74.
In which of the following types of applications is it more appropriate to use a hydraulic system rather than a pneumatic system?
- The output needs to be highly responsive.
- The weight of the system must be minimized.
- The device needs to move at high speeds.
- The power dissipated must be minimized.
Question 75.
Use the diagram below to answer the question that follows.

A picture of an air compressor is shown with a cylindrical tank supported by two long bars for legs at each end. On top of the tank is a pressure gauge with an output port. The gauge is connected to a motor and pump also located above the tank.
On the air compressor shown, what is the primary purpose of the cylindrical metal tank?
- allowing the air to reach higher pressure levels
- cooling the compressed air before it exits the unit
- separating moisture and oil from the compressed air
- keeping the pump from cycling on and off continuously
Question 76.
A heating, ventilation, and air conditioning (HVAC) engineer is designing the air control systems for a large hotel and convention center. The engineer uses computer-modeling software to predict how air will flow through a complex network of blowers, ducts, plenums, and registers. Which of the following concepts is likely the most important principle used in the design of the software model?
- Mass divided by volume remains constant throughout the system.
- Pressure and volume are inversely proportional throughout the system.
- Surface area is proportional to linear dimensions throughout the system.
- Velocity multiplied by cross-sectional area is constant throughout the system.
Question 77.
Which of the following is an example of an open geothermal heat pump system?
- Water from naturally hot springs is circulated past an evaporator coil containing a refrigerant before being released into a nearby body of water.
- Water heated in a boiler is piped to buildings through underground conduits to minimize heat loss and then released into a river.
- Thermocouples in the ground take advantage of natural temperature differences in the soil to generate energy.
- Subsurface steam from a volcanically active region is circulated throughout a city to heat buildings and melt ice.
Question 78.
Which of the following is commonly used to reduce line pressure in an industrial gas delivery system?
- expander
- reducer
- regulator
- decompression valve
Question 79.
Use the diagram below to answer the question that follows.

The diagram shows two cylinders that look like PVC pipes connected by a fitting with a 45 degree bend. The cylinder to the left of the fitting is horizontal, while the cylinder to the right angles downward due to the 45 degree bend. There is an arrow positioned inside each cylinder. The arrow in the left cylinder points to the right. The arrow in the right cylinder points the same direction as the cylinder, down toward the right.
A straight section of a fluid system carrying water is changed to include a 45° bend and a downward slope as indicated in the diagram. This change is most likely to have which of the following effects on the fluid in the system?
- Resistance to flow will decrease.
- Flow will change from laminar to turbulent.
- Resistance to flow will increase.
- Flow will change from turbulent to laminar.
Question 80.
Use the diagram below to answer the question that follows.

The diagram shows a horizontal tube. The tube narrows at the center and then returns to its same width. The narrow portion of the tube is about one third the width of the tube. There are three additional vertical tubes which act as an overflow area for fluid. These tubes are perpendicular to the top of the horizontal tube and are located at the left, right, and center of the horizontal tube. There are arrows placed inside the horizontal tube which indicate that the fluid will flow from left to right.
A fluid flows from left to right through a tube in a cooling unit that has a constriction as shown in the diagram. Which of the following diagrams correctly represents the relative pressures within the tube?
- The same diagram in the question with the horizontal tube filled with fluid. However, the height of the fluid in each connecting vertical tube is different. Response A shows decreasing fluid height from left to right.
- The same diagram in the question with the horizontal tube filled with fluid. However, the height of the fluid in each connecting vertical tube is different. Response B shows equal fluid height in all three vertical tubes.
- The same diagram in the question with the horizontal tube filled with fluid. However, the height of the fluid in each connecting vertical tube is different. Response C shows a low and equal fluid height in both the first and last vertical tubes, while the center tube is almost filled to the top.
- The same diagram in the question with the horizontal tube filled with fluid. However, the height of the fluid in each connecting vertical tube is different. Response D is the opposite of response C where the center tube has a very low fluid height while both the left and right vertical tubes are almost filled to the top.
Question 81.
Use the diagram below to answer the question that follows.

There is a picture of two rectangular boxes representing two warehouses. The first box is 20 feet wide, 20 feet deep, and 12 feet tall. The second box is 40 feet wide, 40 feet deep and 24 feet tall.
The two warehouses shown in the diagram are identically constructed in adjacent locations. On a given windless night, the smaller warehouse requires an average of 1.00 times 10 to the fourth power BTU/h for heating. An average of approximately how much energy, in BTU/h, should be required to heat the larger warehouse to the same temperature on the same night?
- 2.00 times 10 to the fourth power
- 4.00 times 10 to the fourth power
- 6.00 times 10 to the fourth power
- 8.00 times 10 to the fourth power
Question 82.
Greenhouses are warmed by solar radiation passing through sheathing material. Maximizing which of the following characteristics of the sheathing optimizes solar heating efficiency?
- reflectivity in both the ultraviolet spectrum and the infrared spectrum
- transparency in both the ultraviolet spectrum and the infrared spectrum
- transparency in the infrared spectrum and reflectivity in the ultraviolet spectrum
- transparency in the ultraviolet spectrum and reflectivity in the infrared spectrum
Question 83.
The thermostat in an industrial cooling system can be configured with an upper limit and a lower limit of the desired temperature range. If the desired temperature is specified at a narrower range, the cooling system will:
- cycle on and off more frequently.
- cycle on and off less frequently.
- run for more total time.
- run for less total time.
Question 84.
Use the diagram below to answer the question that follows.

The rectangular diagram displays an outdoor landscape. The diagram is slightly taller than it is wide. On the left side of the diagram is a tall, narrow hill that almost reaches the top of the rectangle. The width of the hill is approximately one fifth the width of the diagram. There are two trees on top. At the base of the hill, to the right, is a rock. The rock is almost the same width as the height of the hill. The rock is not tall as it is about one sixth the height of the hill. To the right of the rock is soil. The soil is almost as high as the rock and is approximately half the width of the rock. Three birds are pictured flying above the rock, to the right of the top of the hill. The sun is located at the top right corner of the diagram.
On a warm day, the Sun warms the surface of a rock face. Birds soar on the warm air rising from the heated rock. Some of the rock's heat is transferred to the soil that is in contact with the rock. As the birds fly over the rockface, they generate metabolic heat. Which of the following provides the best example of energy transfer by radiation?
- The Sun warms the surface of the rockface.
- Birds soar on the warm air rising from the heated rock.
- Some heat is transferred from the rock to the adjoining soil.
- The birds generate metabolic heat as they fly.
Question 85.
A heat pump is most likely to become inefficient in which of the following environmental situations?
- The outdoor temperature falls below freezing.
- The outdoor temperature rises above 90°.
- The indoor temperature is about 10° higher than the outdoor temperature.
- The outdoor temperature is about 10° higher than the indoor temperature.
Question 86.
Which of the following is the end product of the chemical process commonly used in fuel cells?
- hydrogen
- water
- carbon dioxide
- methane
Question 87.
Which of the following statements best describes why alternating current is used instead of direct current to transmit power across electrical grid networks?
- The electrical power supply is scalable based on demand.
- The peak-to-peak voltages are minimized for transmission purposes.
- The energy losses due to resistive heating are reduced.
- The frequency is independent of the type of wires used for transmission.
Question 88.
Use the diagram below to answer the question that follows.

The schematic diagram is in the shape of two rectangles positioned left to right, that are both taller than wide. The right rectangle is about one fourth the size of the left. It is attached to the left rectangle at the bottom right. The bottom horizontal line of the right rectangle is an extension of the bottom horizontal line on the left rectangle. The top horizontal line of the right rectangle is perpendicular to the center of the right vertical line of the left rectangle. Intersecting the center of the left line of the left rectangle is a schematic symbol. This symbol consists of two short parallel lines drawn from left to right. The top line of the two parallel lines extends a little longer than the bottom line on both the left and right sides. Attached to the right vertical line of the left rectangle, are two identical symbols. One symbol is located above the perpendicular horizontal line of the right rectangle, while the other is below it. These symbols are similar to a zigzag line with three peaks pointing to the left and to the right. The last symbol is an IC component. It intersects the right vertical line of the right rectangle.
The diagram shows a schematic for a circuit that includes an integrated circuit ( I C ) component. The primary purpose of the resistors in the represented circuit is to:
- increase the total inductance of the circuit.
- control the voltage applied to the I C component.
- protect the I C component from voltage spikes.
- regulate the frequency of the I C component.
Question 89.
The resistance of a wire is inversely proportional to the square of its diameter. A copper wire of diameter Y has a resistance of 8.0 ohms. What would be the resistance of a copper wire of diameter 2Y?
- 2.0 ohms
- 8.0 ohms
- 16 ohms
- 64 ohms
Question 90.
Use the diagram below to answer the question that follows.

The diagram of a hydrogen fuel cell is similar to a long rectangle divided into three adjacent sections. The left side of the cell is the anode side, the right side is the cathode side, and sandwiched between them is the electrolyte. Just outside of the top of the anode and cathode sides are small openings with arrows pointing into each opening. Just outside the bottom of these sides are small openings with arrows that point out of each opening. Connected to the top of the anode and cathode sides is a line representing a wire with the load at the center.
The diagram shows a hydrogen fuel cell in which a catalyst separates electrons from protons. In which labeled location on the diagram does this separation occur?
- anode
- cathode
- electrolyte
- load
Question 91.
Use the diagram below to answer the question that follows.

The diagram shows a long iron bar with a diameter of .25 inches. It is wrapped from one end to the other with coiled wire. There are 300 turns on the windings. There is a wire connected to the ends of the left and right sides of the coiled wire. These two wires are connected to a 12 volt battery terminal.
Which of the following changes in the design of the electromagnet would be most effective in increasing the mass that the electromagnet can lift?
- replacing the 12-volt DC source with a 12-volt A C source
- replacing the iron bar with one having a greater diameter
- replacing the iron bar with a copper bar
- increasing the number of windings on the bar
Question 92.
A transformer has 1.5 times 10 to the second power input windings and 4.5 times 10 to the second power output windings. What is the transformer's output voltage when 220 V is applied to the input windings?
- 73.3 V
- 110 V
- 440 V
- 660 V
Question 93.
Use the diagram below to answer the question that follows.

The circuit shows a light bulb with two terminals. Terminal X is at the left and terminal Y is at the right of the bulb. Terminal Y has a wire labeled Y attached to the positive terminal of a battery. Terminal X has a wire labeled X attached to the negative terminal of the same battery.
A simple circuit consists of a lamp, a battery, and two wires as shown in the diagram. A person who wants to use a multimeter to measure the current through the lamp should connect the meter:
- between wire X and the negative terminal.
- between terminal X and terminal Y.
- between the positive and negative terminals of the battery.
- from terminal X to terminal Y with the bulb removed.
Question 94.
Use the diagram below to answer the question that follows.

The diagram shows two cylinders connected by a tube that attaches at the bottom center of each cylinder. The left cylinder is tall and narrow while the right cylinder is short and wide. Both cylinders have an internal shaded section spanning the width of their perspective cylinders and approximately one-half inch tall. The shaded section in the left cylinder is located close to the top. There is an arrow located at the top center of this cylinder pointing down to the shaded area with a label of F 1. The radius is labeled r 1. The shaded section in the right cylinder is close to the bottom. There is an arrow located at the center of this cylinder just above the shaded section. It is pointing up, away from the shaded section and is labeled F 0. The right cylinder has a radius labeled r 0.
A hydraulic engineering company designs hydraulic systems similar to the one shown in the diagram. The left input piston has a radius of r 1 and experiences a force of F 1 , while the right output piston has a radius of r 0 and exerts a force of F 0 . Designers are creating a system with an input piston radius of 2.0 cm. To create a system with a mechanical advantage of 9, what does the radius of the output piston, r 0 , need to be?
- 3.0 cm
- 6.0 cm
- 7.0 cm
- 18 cm
Question 95.
Elevators are designed using a motor that turns a pulley. The elevator car is suspended from the end of a cable on one side of the pulley, while a counterweight is attached to the cable on the other side of the pulley. Typically the counterweight has a mass equal to that of the elevator car plus half its maximum load. The pulley and counterweight in an elevator system serve which of the following functions?
- permitting a larger elevator car to be used
- increasing the maximum speed at which the elevator car can travel
- reducing the force needed to raise and lower the elevator car
- eliminating the need for a braking mechanism on the elevator car
Question 96.
A worm gear drive consists of a screw shaft that engages a spur gear. A worm gear drive has which of the following characteristics?
- The two components move parallel to one another.
- The spur gear turns faster than the worm gear screw shaft.
- The spur gear axle has less torque than the worm gear screw shaft.
- The spur gear cannot turn the worm gear screw shaft.
Question 97.
A rock that has a mass of 64 kg is at the edge of a cliff that has a height of 20 m. If the rock falls from the cliff, what will be its kinetic energy when it strikes the ground below?
- 1,568 J
- 12,544 J
- 15,366 J
- 122,931 J
Question 98.
Which of the following systems allows for the output shaft to rotate faster than the input shaft while rotating in the same direction as the input shaft?
- Response A displays a single belt pulley system with a small pulley on the left, labeled input, and a large pulley on the right, labeled output. The belt is located around the outside of both pulleys.
- Response B shows a combined gear system with three gears positioned left to right. The left gear is the smallest and is labeled input. Its teeth turn the center gear and the center gear turns the right gear. The center gear and right gear are approximately the same size. The right gear is labeled output.
- Response C is a single belt pulley system with a large pulley on the left, labeled input, and a small pulley on the right, labeled output. The belt is located around the outside of both pulleys.
- Response D shows two gears side by side with intersecting teeth. The left gear is smaller and is labeled input. The right, larger gear, is labeled output.
Question 99.
Use the diagram below to answer the question that follows.

The diagram shows a single belt pulley system with a belt located around the outside of two pulleys. The pulley on the left, labeled input, has a radius of nine inches and a torque of 195 Newtons per meter being applied. The right pulley has a radius of 3 inches and is labeled output.
What is the torque, tau , produced by the output pulley when a torque of 195 Nm is applied to the input pulley?
- 65.0 Nm
- 97.5 Nm
- 390 Nm
- 585 Nm
Question 100.
Use the diagram below to answer the question that follows.

The diagram shows a line representing a seesaw. There is a fulcrum placed under the line at the center. There is a small rectangle sitting above the line, ten feet left of the fulcrum. It is labeled child and has 90 kilograms written inside the rectangle. A rectangle, labeled adult, is located above line six feet to the right of the fulcrum. Nothing is written inside this rectangle.
An adult and a child are balanced on a seesaw as shown in the diagram. What is the weight of the adult?
- 135 kg
- 150 kg
- 175 kg
- 240 kg
Open-Response Items
The directions shown below represent what you will see on the actual test. For the purposes of this practice test, you will be able to type your written responses in the boxes provided on the answer key.
This section of the test consists of two open-response item assignments. You will be asked to prepare a written response of approximately 150–300 words for each assignment. You should use your time to plan, write, review, and edit your response for each assignment. You must write responses to both of the assignments.
For each assignment, read the topic and directions carefully before you begin to work. Think about how you will organize your response.
As a whole, your response to each assignment must demonstrate an understanding of the knowledge of the field. In your response to each assignment, you are expected to demonstrate the depth of your understanding of the subject area by applying your knowledge rather than by merely reciting factual information.
Your response to each assignment will be evaluated based on the following criteria.
- Purpose: the extent to which the response achieves the purpose of the assignment
- Subject Knowledge: appropriateness and accuracy in the application of subject knowledge
- Support: quality and relevance of supporting evidence
- Rationale: soundness of argument and degree of understanding of the subject area
The open-response item assignments are intended to assess subject knowledge. Your responses must be communicated clearly enough to permit valid judgment of the evaluation criteria by scorers. Your responses should be written for an audience of educators in this field. The final version of each response should conform to the conventions of edited American English. Your responses should be your original work, written in your own words, and not copied or paraphrased from some other work.
Be sure to write about the assigned topics. You may not use any reference materials during the test. Remember to review your work and make any changes you think will improve your responses.
Question 101.
Use the information below to complete the assignment that follows.
Students in your technology and engineering class will be providing support for an outdoor movie night being sponsored by a school club. The students need to design a large screen on which videos can be projected. The screen needs to be lightweight and portable to accommodate changes in location due to weather or other reasons.
Prepare a response of approximately 150 to 300 words in which you
- describe how you would support the students in applying the engineering design process (e.g., define the problem, research, creation of design, prototype, test and evaluate, communicate, provide feedback) to prototype a solution in the technology and engineering classroom;
- identify a specific science and engineering practice related to this problem and describe how it could be used to help the students design a solution; and
- describe how you would guide the students in selecting materials, tools, and processes, including safety considerations, to build a working prototype of this system.
Question 102.
Use the information in the Exhibit to complete the assignment below.
For this system, develop a response of approximately 150 to 300 words in which you:
- describe the basic characteristics and function of the components in the system;
- describe the energy transfers that occur in the system, including inputs and outputs; and
- identify a specific science and engineering practice and describe how it could be used to help students make sense of the system and how it functions.
Exhibit

A pair of horizontally-aligned, round-cornered rectangles are shown. A continuous line zig-zags through each rectangle from top to bottom before extending horizontally from both top and bottom to join the line coming from the other rectangle at a smaller rectangle at the top of the diagram and an even smaller rectangle at the bottom of the diagram. These lines form a continuous loop. Right-facing arrows label the portion of the line at the top of the diagram and left-facing arrows label the portion of the line at the bottom of the diagram. The left portion of the loop is light gray. The right portion of the loop is medium gray. The left rectangle is labeled evaporator and includes an arrow pointing to it labeled heat source outside air. The right rectangle is labeled condenser and includes an arrow pointing away from it labeled heated air interior of building. The smaller rectangle is labeled compressor. The even smaller rectangle is labeled expansion valve.
The diagram shows a simplified version of a heat pump in which refrigerant fluid flows throughout the system in a clockwise direction. The heat pump is used to transfer thermal energy from a low-heat source (outside cold air) to heat air in the interior of a building. The system consists of the following components:
- Expansion valve
- Evaporator coils
- Compressor
- Condenser coils







